
За продавање
Нова деловна зграда во центарот на градот
ID12744O
Тип
Деловен простор Површина
1.678 m² Локација
Центар Цена
3.000 €

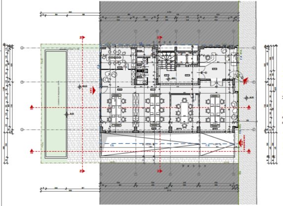
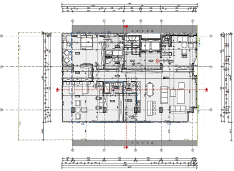
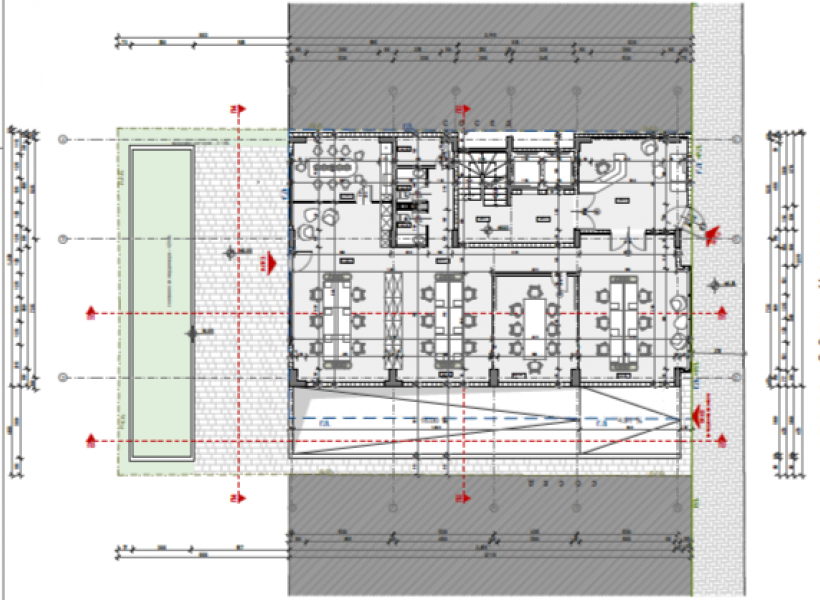
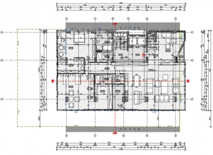
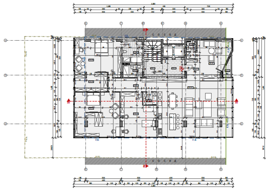
Нова современа деловна зграда, позиционирана на
атрактивна локација во центарот на градот.
Безгреден систем на градба, генератор за струја во случај на прекин во снабдувањето, 2 лифта, рецепција и 24ч видео надзор. Можност за предавање на зградата со комплетно изведен Fit-Out и најсовремени Smart системи. Со флексибилната организација на просторот, погодна е за канцелариски, комерцијални или други деловни дејности.
Зградата располага со:
Вкупна површина (над земја): 1.678 m2
Вкупна површина со подземни нивоа: 2.755,2 m2
Достапни се 24 паркинг места во гаража.
За повеќе информации ве молиме да не контактирате: