
For rent
New office space for rent in Center
ID9174O
Type
Office Space Area
86 m² Location
Centar Price
800 €

New office space for rent on a prime location in Center, located in a residential-office building.
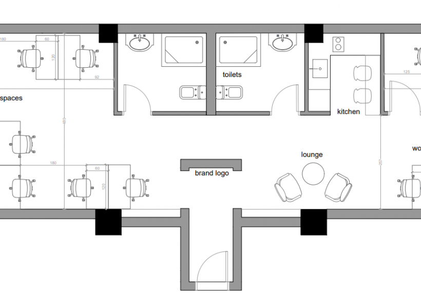
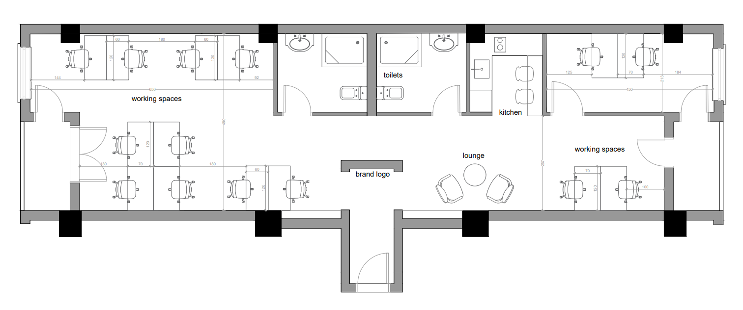
The office space has a total area of 86m2, located on the 6th floor and it consists of:
Open space with 12 working positions, one office with 1-2 working positions, 2 toilets, kitchen and 2 terraces.
The heating and cooling are regulated by inverter air conditioners.
Parking space available in the multi-storey garage next to the office building.
Sales Agent - Martin Mitev