
For rent
New business space in Center
ID8970O
Type
Office Space Area
135 m² Rooms
5 Location
Centar Price
1.600 €

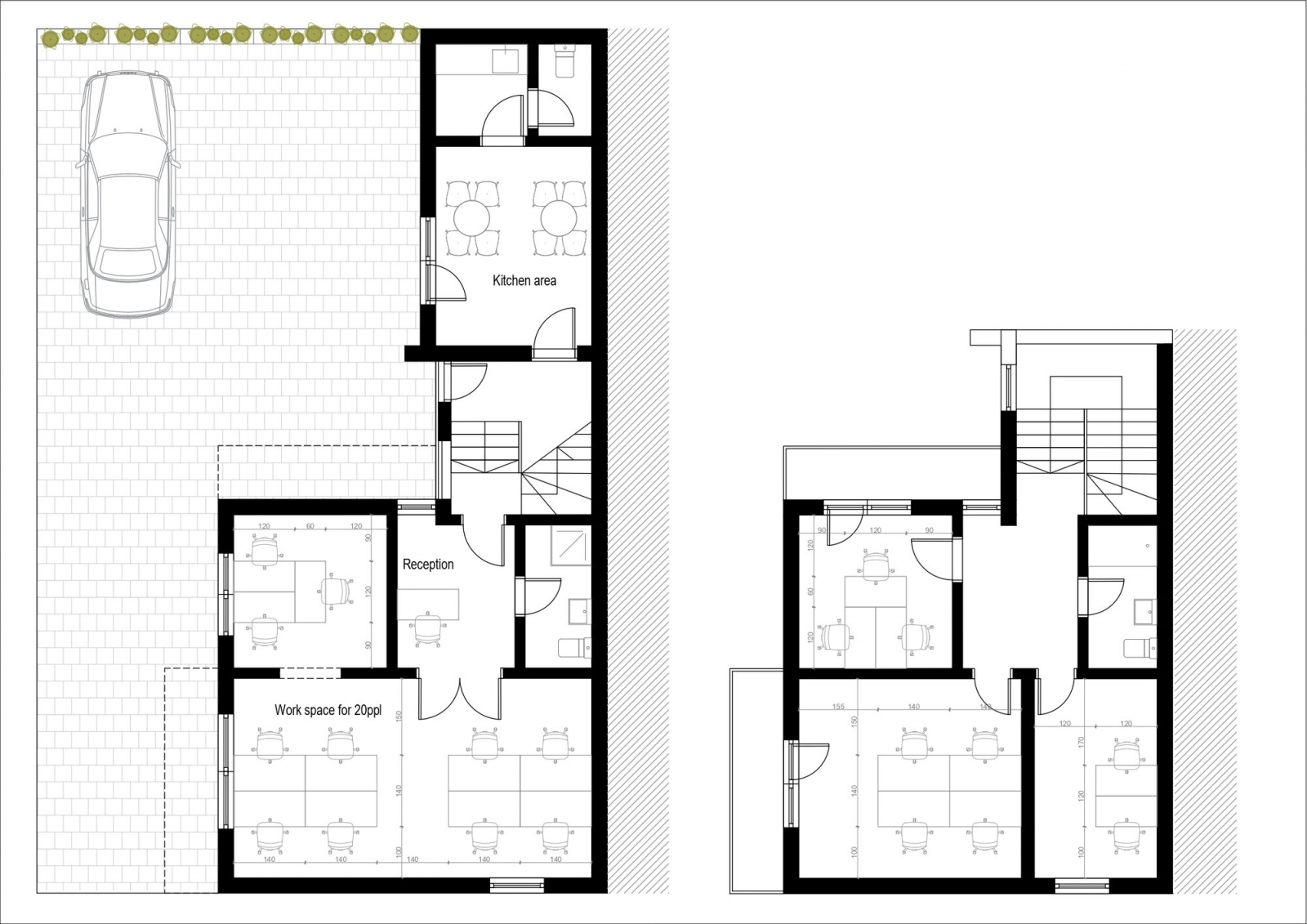
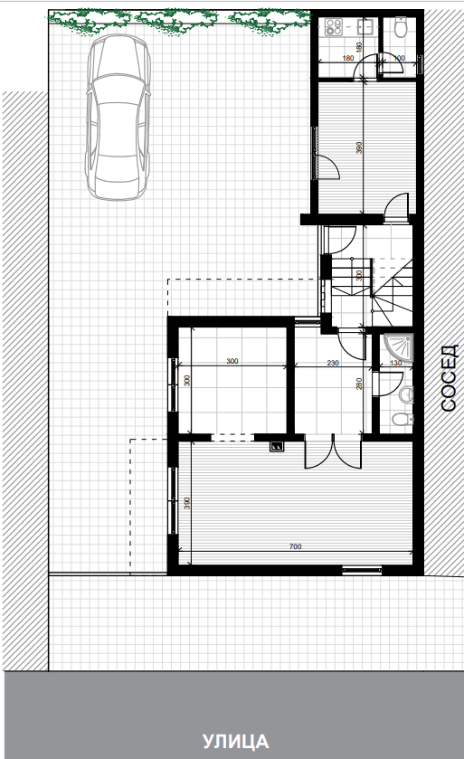
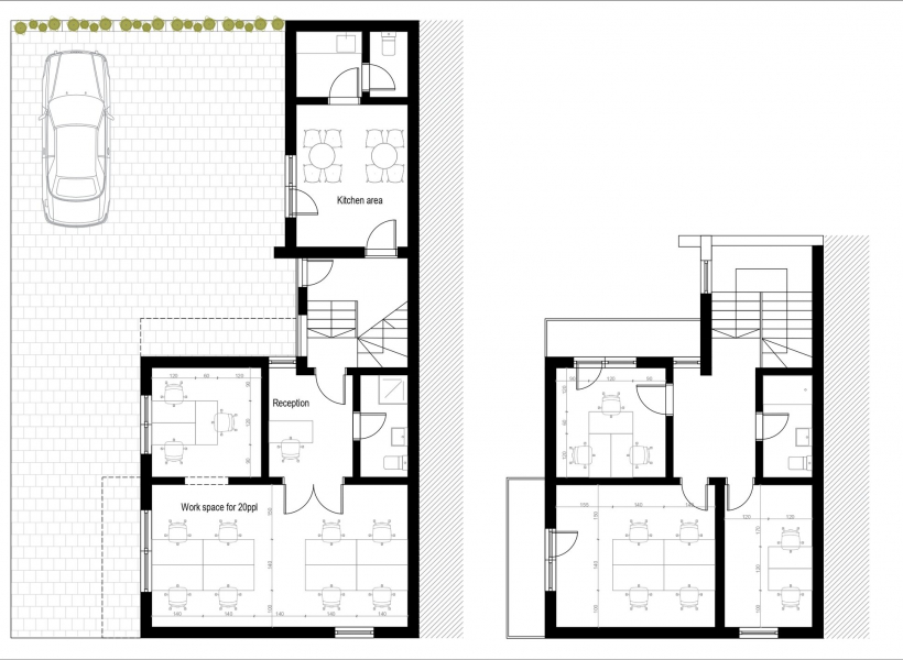
New business space in Center with a total area of 135m2 and a yard of 125m2 is available for rent.
The business space is divided into 2 levels:
Ground floor: One spacious open space office, one smaller office, toilet, kitchen and pantry.
First floor: Three separate offices and toilet.
The heating is regulated through a multisplit system in every office.
7 parking spaces available.
The space can be furnished according to the wishes of the future tenants.
Sales Agent - Martin Mitev