Detail

Office space in premium business building located in Aerodrom on a representative location.

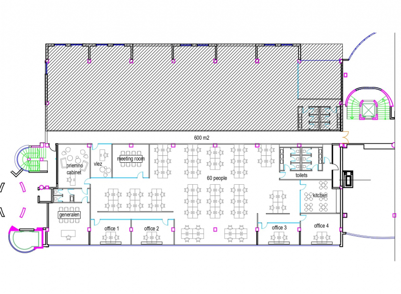
The office space is with a total area of 600m2. The building has reception, 24/7 security and private parking space.

Property One Real Estate and Development team is available for equipping and furnishing the space, according to the requests of the future tenants.

 

For more information, we are at your disposal on:

Info
24h controlled access
air conditioning
cable / satellite tv
elevator
empty
guard
intercom
internet / wi-fi
on site management
parking / garage
private heating
Contact
+389 78 30 60 83
bul. 8 Septemvri br.3
Skopje, 1000, Macedonia