
За изнајмување
Ексклузивна куќа во Центар до Кале
ID11516H
Тип
Куќа Површина
527 m² Соби
7 Локација
Центар Цена:
/

Се изнајмува ексклузивна куќа 527м2 во Центар.
Куќата се наоѓа во близина на историската населба на општина Центар во градот Скопје, помеѓу Старата чаршија и скопската тврдина.
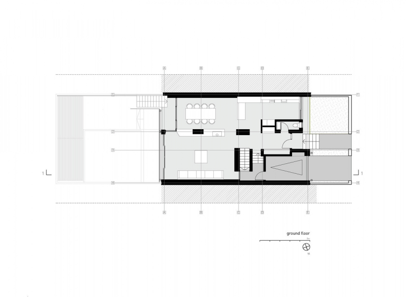
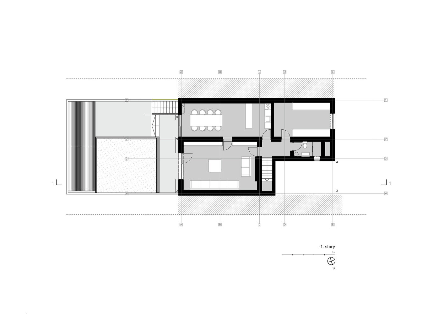
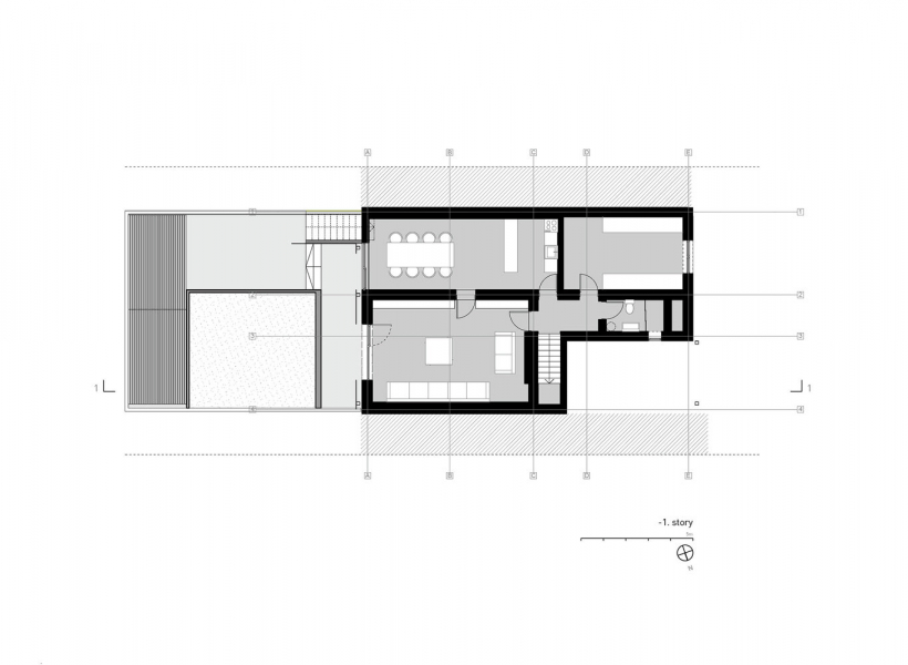
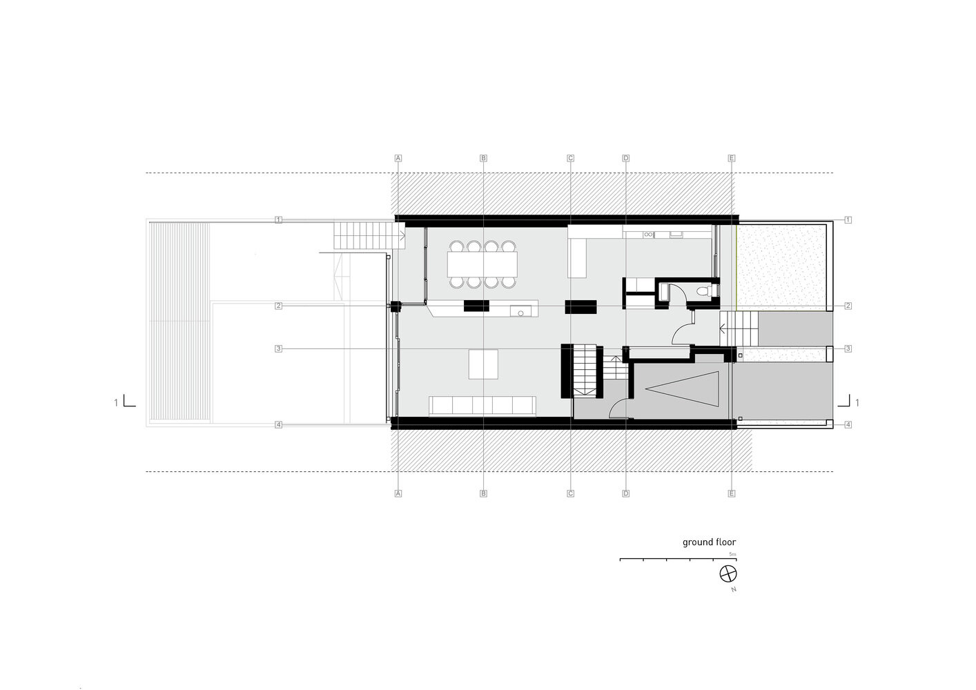
Куќата располага со подрум, приземје, прв кат и поткровје.
Детален опис по катови:
Подрум - со дневен престој, кујна и трпезарија, бања, технички простор и двор.
Приземје - со дневен престој, кујна и трпезарија и тоалет.
Прв кат- со четири спални соби (од кои две имаат сопствена бања) и дополнително уште една бања.
Поткровје - со апартман кој располага со дневен престој, фитнес соба, гардероба, спална со сопствена бања и две големи тераси.
Продажен агент - Маринела Јаневска