

Се продава луксузна куќа во Горно Соње.
Куќата располага со вкупна површина од 319м², сместена на плац од 2021м², во престижниот и мирен дел на Горно Соње. Имотот нуди комбинација од приватност, современ дизајн и висок стандард на живот.
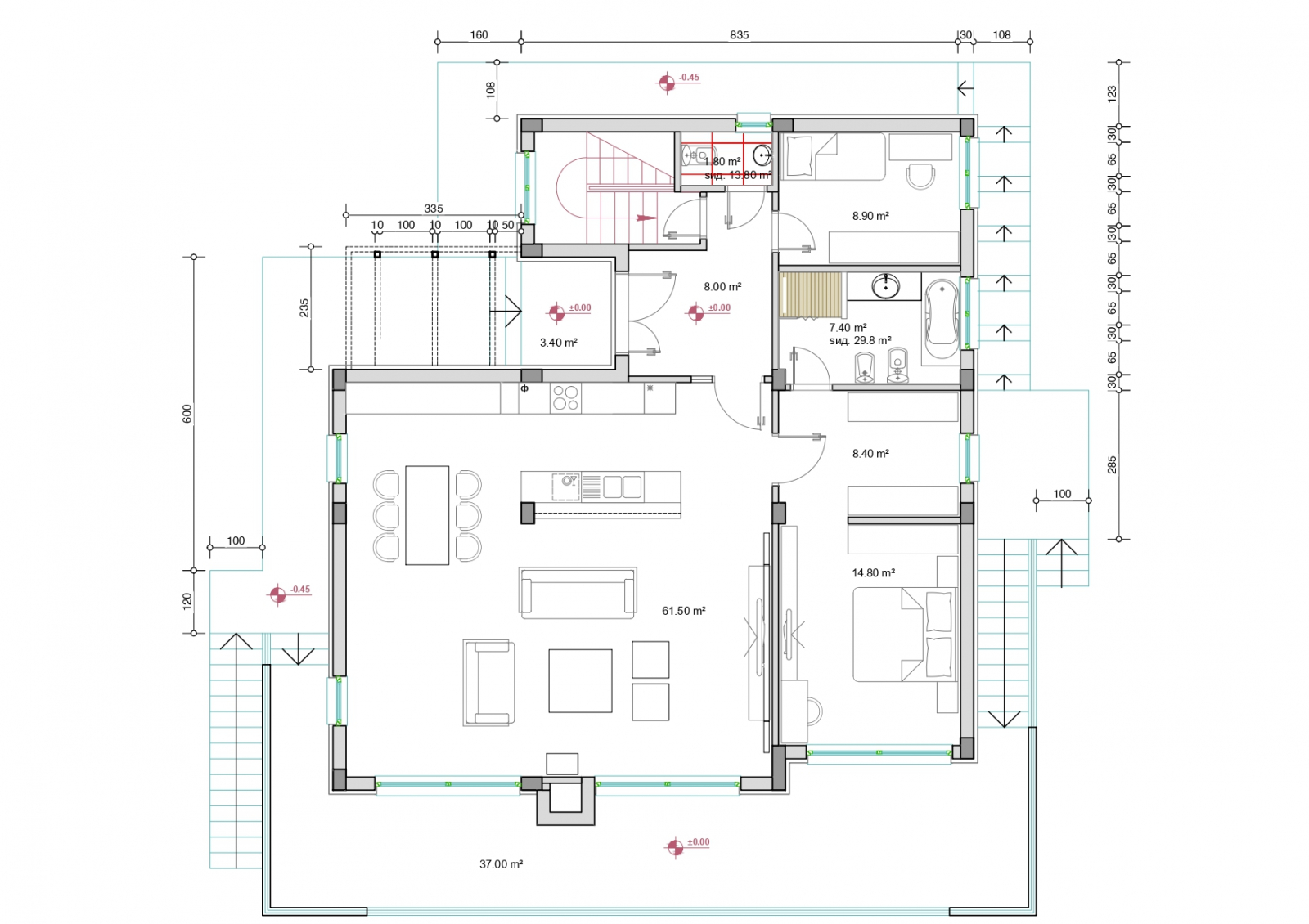
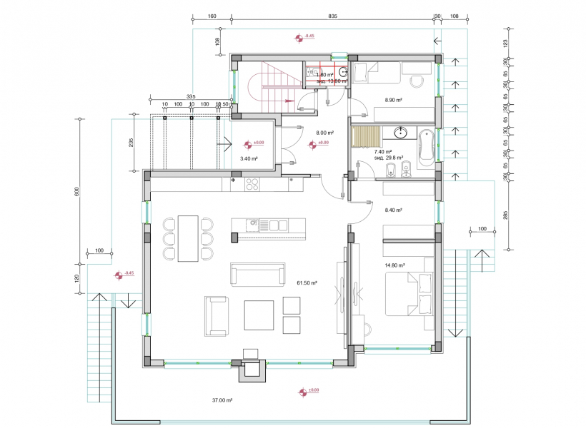
Приземје:
Приземјето е внимателно организирано за максимален комфор и практичност. Содржи пространа дневна соба со кујна и трпезарија, спална соба, бања и дополнителен простор за подрум со машинска просторија/utility. Просторот е дизајниран за лесна циркулација и удобност во секојдневното живеење.
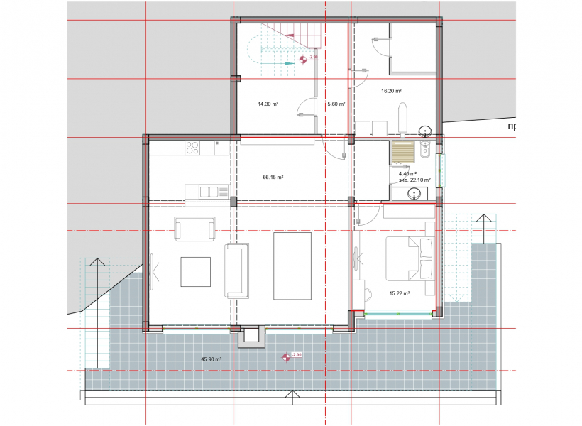
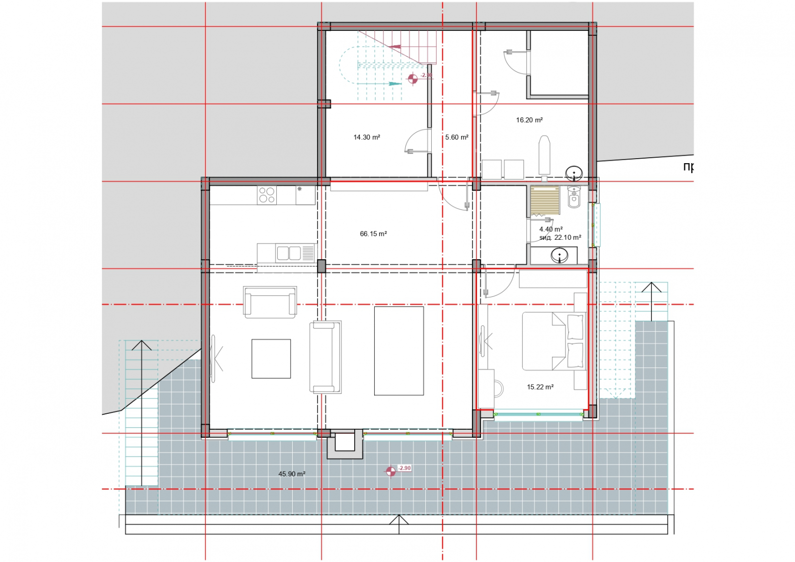
Горен кат:
Горниот кат нуди приватен дел за одмор и релаксација. Содржи главен влез, дневна соба со кујна и трпезарија, главна спална со бања и гардеробер, дополнителна спална соба и гостински тоалет. Висината на дневната соба на горниот кат достигнува 4 метри, создавајќи чувство на пространост и светлина.
Технички карактеристики:
Куќата е изградена со висококвалитетни материјали, со изолација на надворешните ѕидови, трослојно стакло на алуминиумските прозорци и врати, подно греење и фенкојлери со топлотна пумпа, комплетно опремени кујни со вградни уреди, камини на горниот и долниот кат, систем за прочистување на вода, базен 12x4 метри, летна кујна со помошни простории и камена ограда со влезни врати на далечинско управување.
Оваа куќа претставува совршена комбинација од луксуз, приватност и функционалност, идеална за семејство кое бара современ и комфорен дом во престижна и мирна локација.
За повеќе информации, контактирајте нe: