За објектот

Нови станови во станбено-деловен објект.

Станбено-деловен објект, лоциран во една од најпосакуваните и добро поврзани градски зони во Аеродром. Објектот нуди станови со висок квалитет на градба, функционален дизајн и врвен комфор, со лесен пристап до центарот на градот, паркови, ресторани и сите клучни урбани содржини.

Достапни станбени единици:

  • Стан тип 1 – 49м², прв кат: дневна со кујна и трпезарија, спална, бања, тераса
  • Стан тип 2 – 66м², прв, втор, трет, четврт, петти и седми кат: дневна, кујна со трпезарија, две спални, бања, тераса
  • Стан тип 3 – 44м², прв, втор, трет, четврти и седми кат: дневна, кујна со трпезарија, спална, бања, тераса
  • Стан тип 4 – 68м², прв, трети, четврти, петти, шести и седми кат: дневна, кујна со трпезарија, три спални, бања, тоалет, тераса
  • Стан тип 5 – 76м², шести кат: дневна, кујна со трпезарија, три спални, бања, тоалет, тераса
  • Стан тип 6 – 78м², шести кат: дневна, кујна со трпезарија, две спални, бања, две тераси
  • Стан тип 7 – 89м², седми кат: дневна, кујна со трпезарија, три спални, бања, тоалет, остава/гардеробер, две тераси

Квалитет на градба:

  • Фасада и ѕидови: Demit Knauf систем со стиропор изолација 10 см, керамички термо блок 16см Младост, внатрешен гипсан малтер; дополнителна термоизолација помеѓу становите и во ходниците.
  • ПВЦ столарија: VEKA или REHAU со двојно стакло, антрацит надвор, бел профил внатре
  • Врати: внатрешни медијапански врати Prospera, надворешна сигурносна врата од метална конструкција
  • Паркет: трослоен храстов паркет Rezult/Tarket
  • Лифт: PRIMA LIFT со мотор од Италија
  • Водовод и хидроизолација: PPR Pestan, Becament/Ceresit Германија
  • Бања: висококвалитетни материјали, хидроизолација и спуштен плафон Hunter Douglas/Amstrong

Греењето во објектот е предвидено на градско централно парно, додека за ладење е предвидена инсталација за клима уреди.

Планираниот рок за завршување на изградбата е крајот на 2027 година.

Цената на становите изнесува 2.200 €/м² + 5% ДДВ.

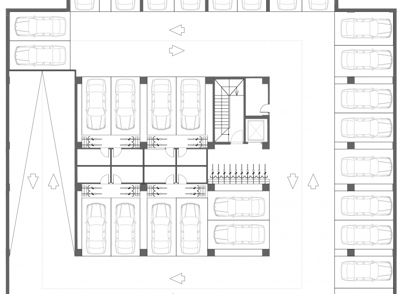
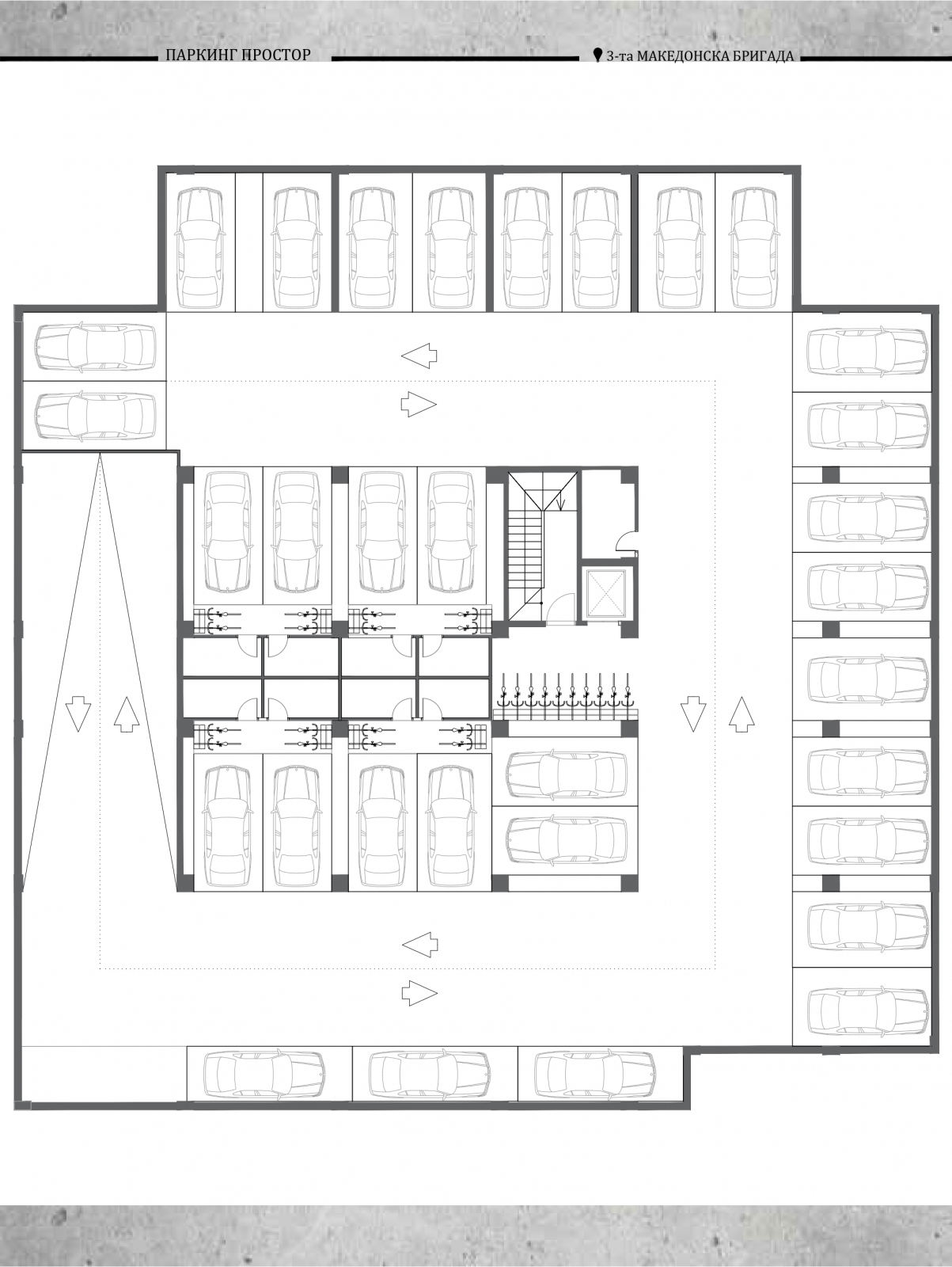
Достапни се и паркинг места на ниво -1 по цена од 12.000 € со вклучен ДДВ.

 

За повеќе информации, контактирајте нe

 

Инфо
Контакт
+389 78 24 94 88
бул. 8ми Септември бр.3
Скопје, 1000, Македонија