
За продавање
Стан 120м2 во Центар
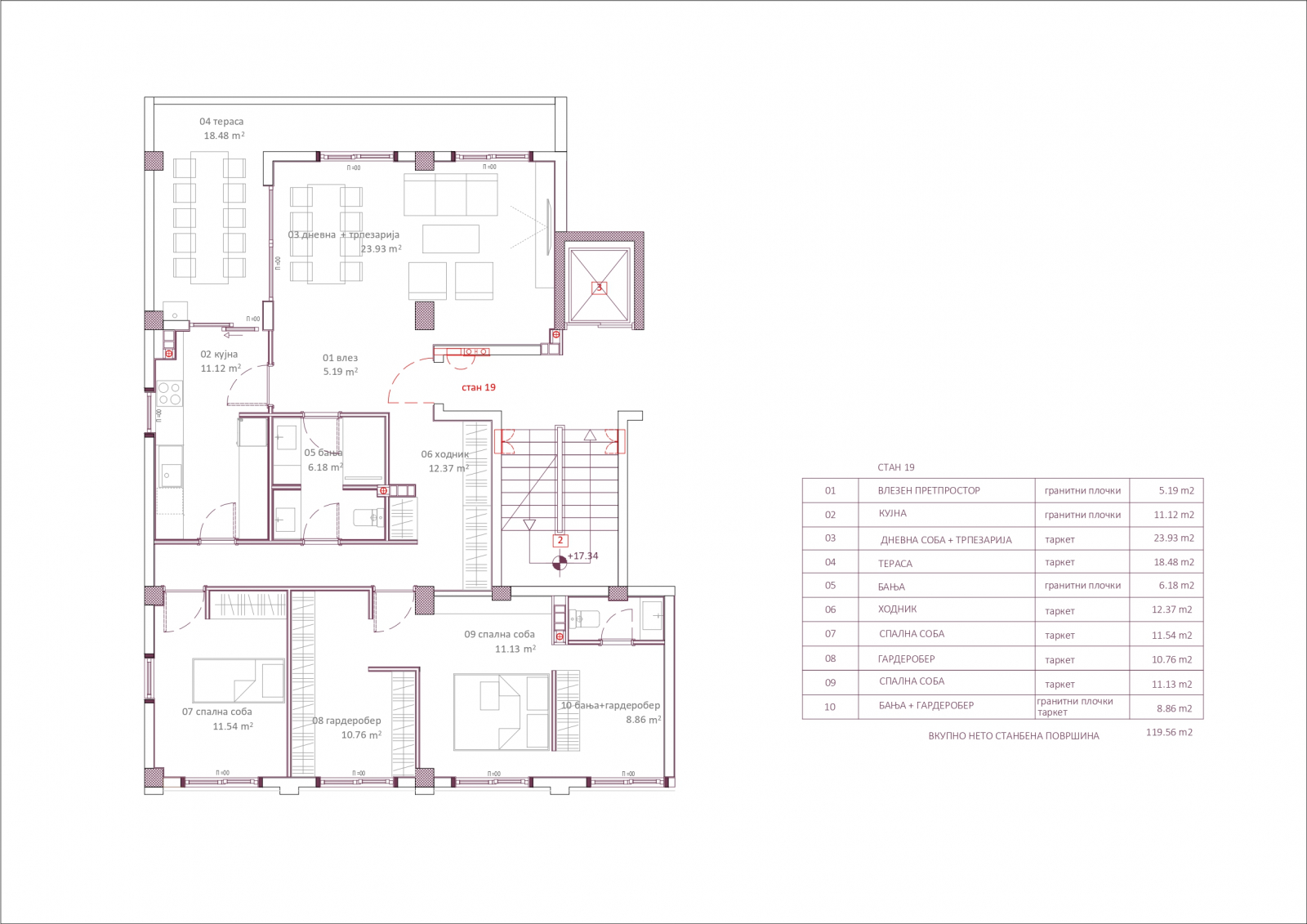
ID15168A
Тип
Стан Површина
120 m² Соби
4 Локација
Центар Цена
2.650 €

Резиденцијален објект, лоциран во една од најпосакуваните и добро поврзани градски зони, се нудат станови со висок квалитет на градба, функционален дизајн и врвен комфор.
Се продава стан со вкупна површина од 120м2, лициран на поткровје.
Станот располага со три спални соби, од кои едната спална со сопствен тоалет и простор за гардеробер, пространа дневна со трпезарија, одделна кујна, бања и тераса со површина од 18м2.
Квалитет на градба:
Достапни паркинг места на ниво -1 по цена од 15.000 € со вклучен ДДВ и на ниво -2 по цена од 12.000 € со вклучен ДДВ.
За повеќе информации, контактирајте нe