За објектот

Се продава стан 77м2 во Центар на одлична локација.

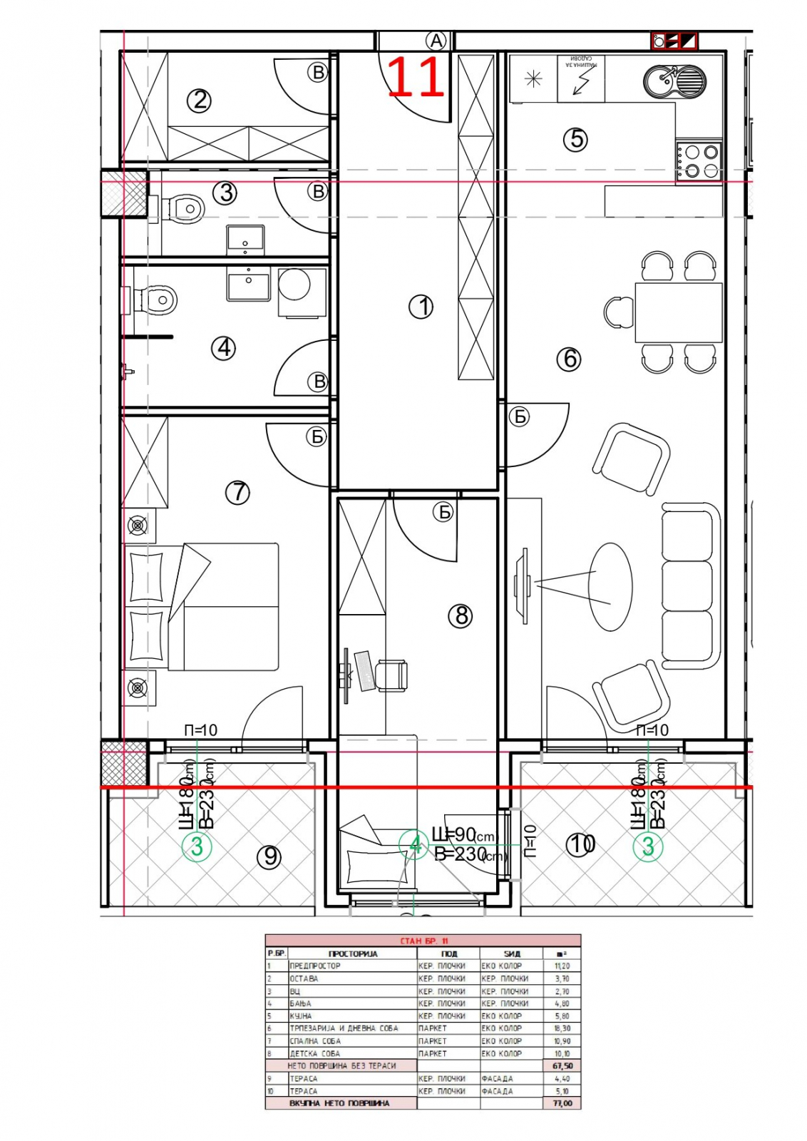
Станот е лоциран на петти кат и располага со:

  • 2 спални соби
  • Дневна соба со трпезарија
  • Кујна
  • Два тоалета
  • Две тераси

На располагање е паркинг место во гарaжа.

Зградата се очекува да биде готова кон крајот на 2026 година.

 

Продажен Агент - Нино Латиф:

Инфо
24ч контролиран влез
балкон / тераса
лифт
паркинг / гаража
празен
Контакт
+389 78 24 94 88
бул. 8ми Септември бр.3
Скопје, 1000, Македонија