
За продавање
Стан за одмор со прекрасен поглед во Австрија
ID4866A
Тип
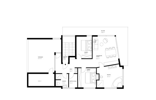
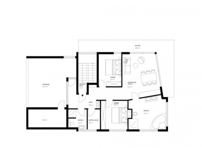
Стан Површина
106 m² Соби
3 Локација
Австрија Цена:
/

Одлична инвестиција во стан за одмор на една од најдобрите локации на Австриските Алпи, во еден од најдобрите скијачки центри Шладминг.
Местото располага со безброј можности за летни и зимски активности, како и добра инвестиција за бизнис односно реизнајмување.
Станот е лоциран во приватна, мала зграда, расплага со 3 соби, 1 простран тоалет со џакузи и туш кабина, 1 гостински тоалет, посебен туш, 2 тераси 30м2 со прекрасен поглед на Алпите, едната тераса е погодна за летна кујна или простор за скара.
Станот располага со дополнителен стан 130м2 на -1 ниво со 4 спални соби, остава, тоалет со бања.
Гаражно место и 2 дополнителни паркинг места пред зградата на располагање.